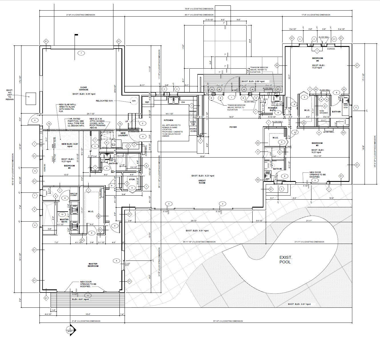
Intracoastal Residence
Full renovation of existing residence and optimized floor plan layout to accommodate and additional 1.5 Baths and Laundry Room within existing footprint. 4/3 became a 4/4.5. 
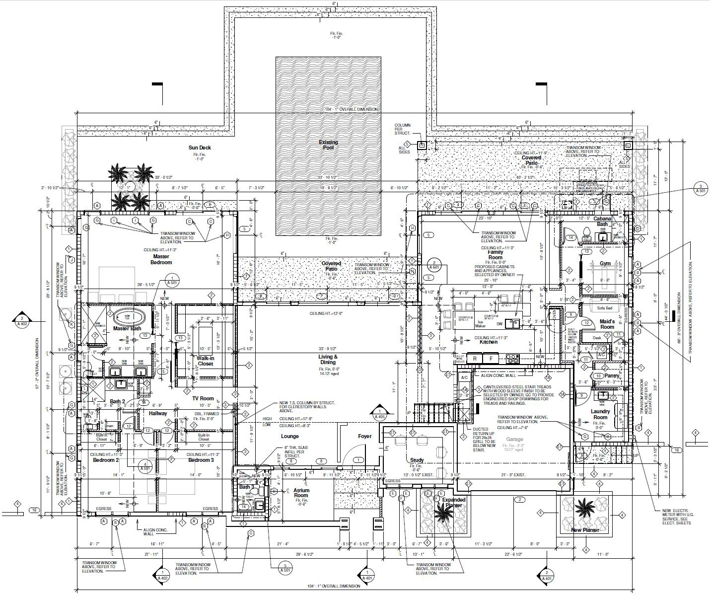
Coral Gables Residence
Full renovation of existing residence with new vaulted ceiling with clerestory windows + Principal Bedroom and Family Room additions.
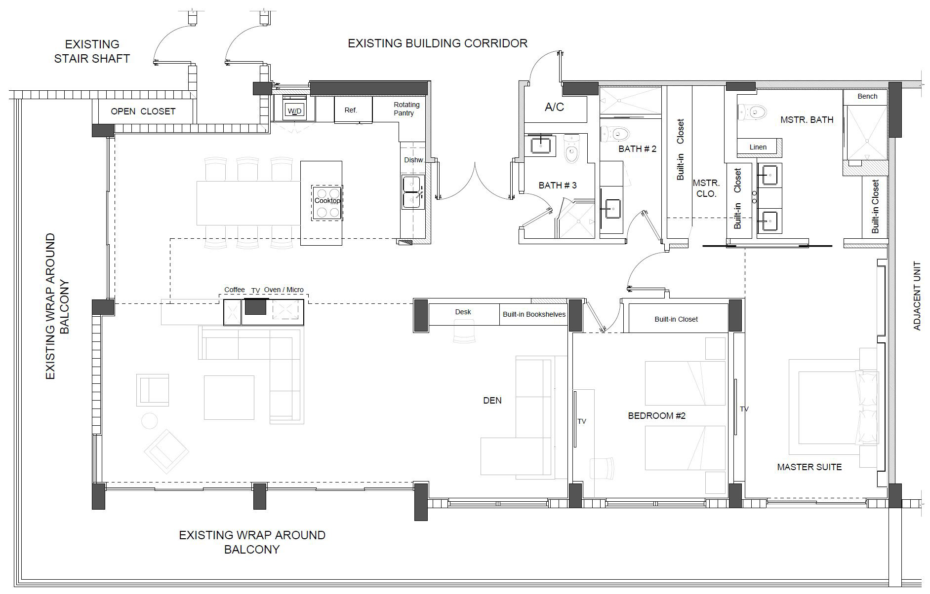
Key Biscayne Condo Renovation. Full Condo renovations with floor plan layout optimization.
Existing Residence
Existing Residence
Proposed Modern Addition
Proposed Modern Addition
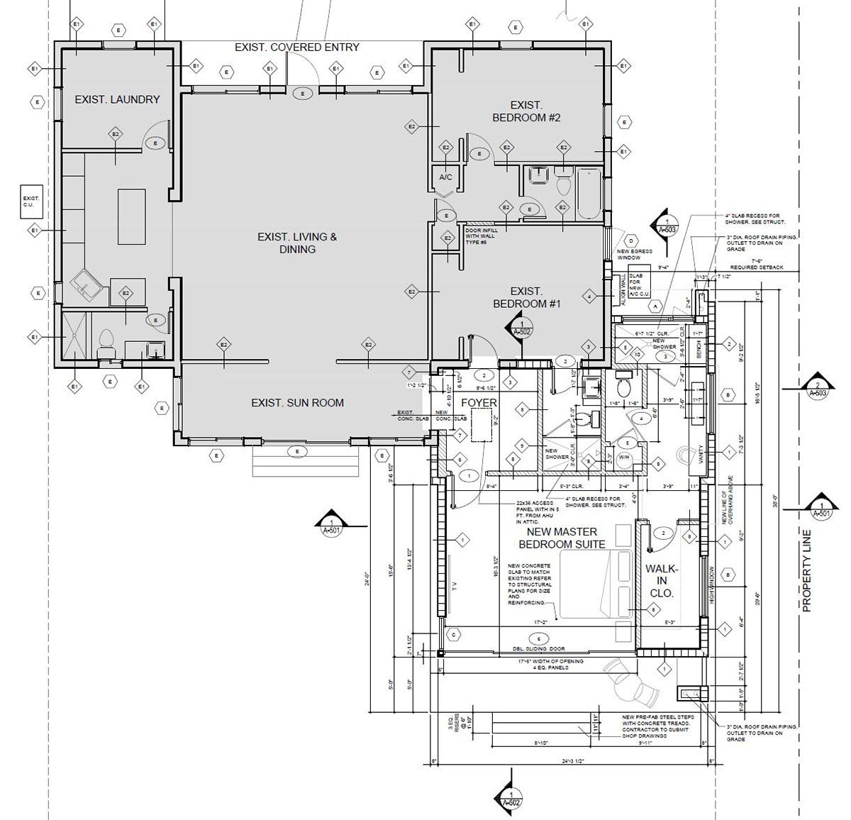
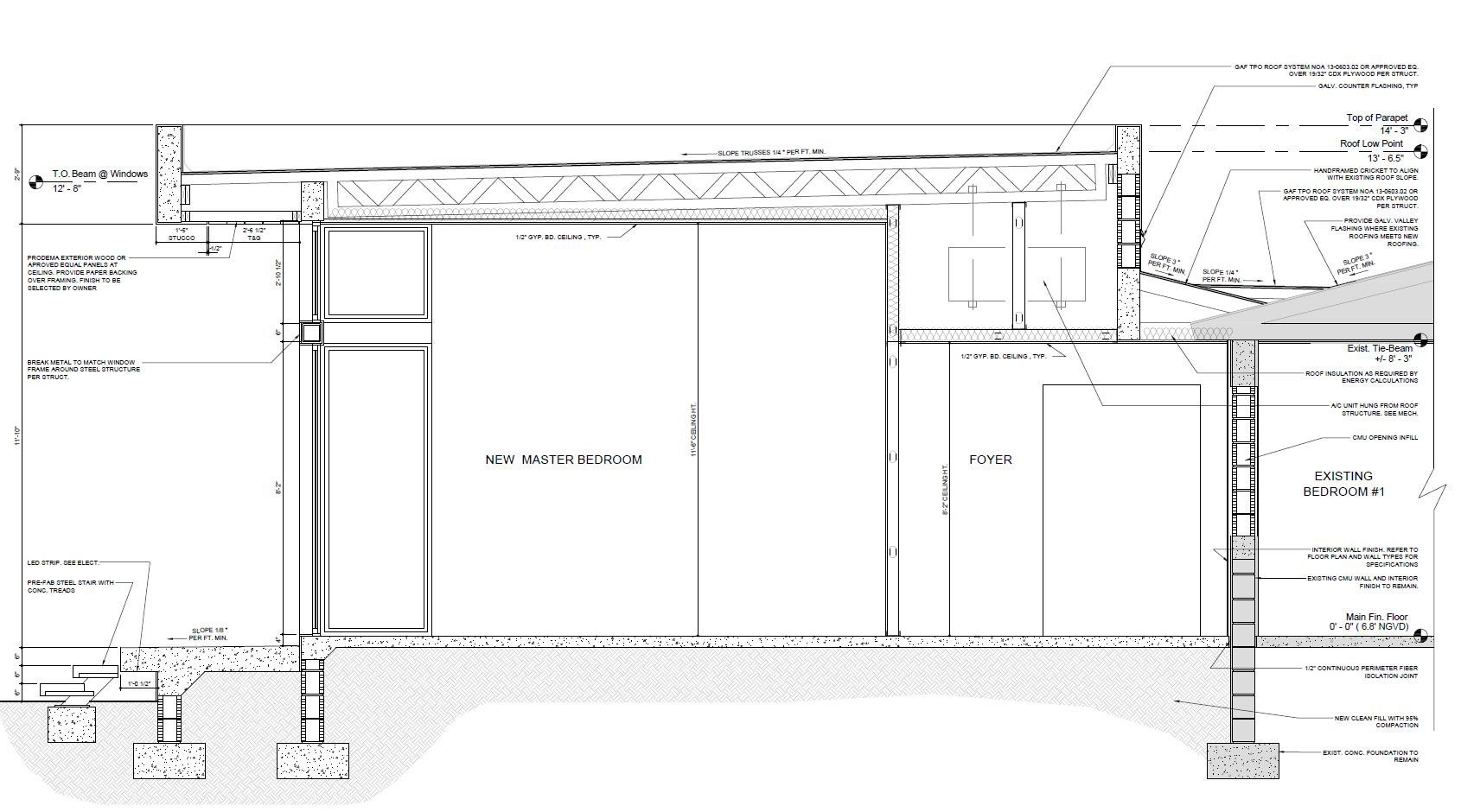
Miami Residence
Conceptual Study for a Modern Primary Bedroom Suite Addition to an existing residence. 
Back to Top